TWEEWOONST Schilde
Nieuwbouw vrijstaande kangoeroewoning
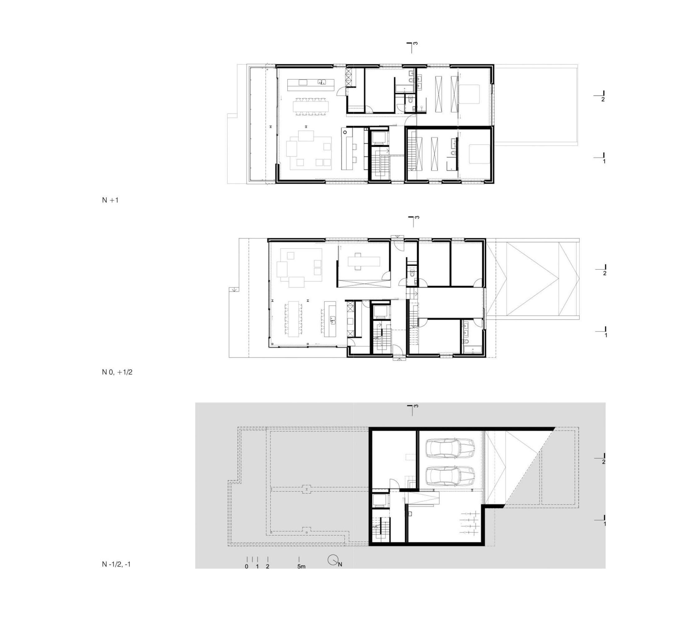
In een residentiële woonwijk worden twee woningen voor drie generaties tot één volume gekneed. De opdracht bestond erin een ruime tweewoonst te ontwerpen waarbij, naast het voordeel van samen leven, voldoende aandacht voor privacy bestaat.
De ene woning wordt op de andere geplaatst, deels in de andere geschoven. De dubbele as in plan bepaalt de organisatie van beide woningen. In snede zorgen enkele verschuivingen voor het realiseren van een half-ondergrondse parkeer- en bergruimte, variërende verdiepingshoogten en verrassende lichttoetreding. Een gemeenschappelijke trap en lift verbinden de verschillende vloerniveaus.
De vloer- en dakplaten in zichtbeton, duidelijk leesbaar in de gevels, bepalen de contouren van het volume. Het horizontale invulmetselwerk staat tegenover de verticale verdeling van de raamgehelen. Uitkragende delen zorgen voor schaduw en geborgenheid.
Complementaire kleuren blauw en oranje, zichtbeton en delen in lichte Eik bepalen de sfeer van het interieur.
‘Tweewoonst in Schilde / Habitation kangourou à Schilde’, Bouwen met baksteen / Terre cuite et construction, 4/2015, 2015
‘Eén woning, twee keer thuis – Drie generaties onder één dak, DSW, 14-15/11, 2015
‘Voor architecten op zoek naar mooie, lange lijnen door een extra lang formaat’, Brochure Terca, Wienerberger, 2015