Hoeve Hofstede

Aan de Leuvense Vaart, in agrarisch gebied, staat deze langgevelhoeve, bestaande uit 19e-eeuwse stallingen en een recenter woonhuis uit de jaren ’50. Door de langdurige leegstand verkeerde de hoeve in slechte staat.

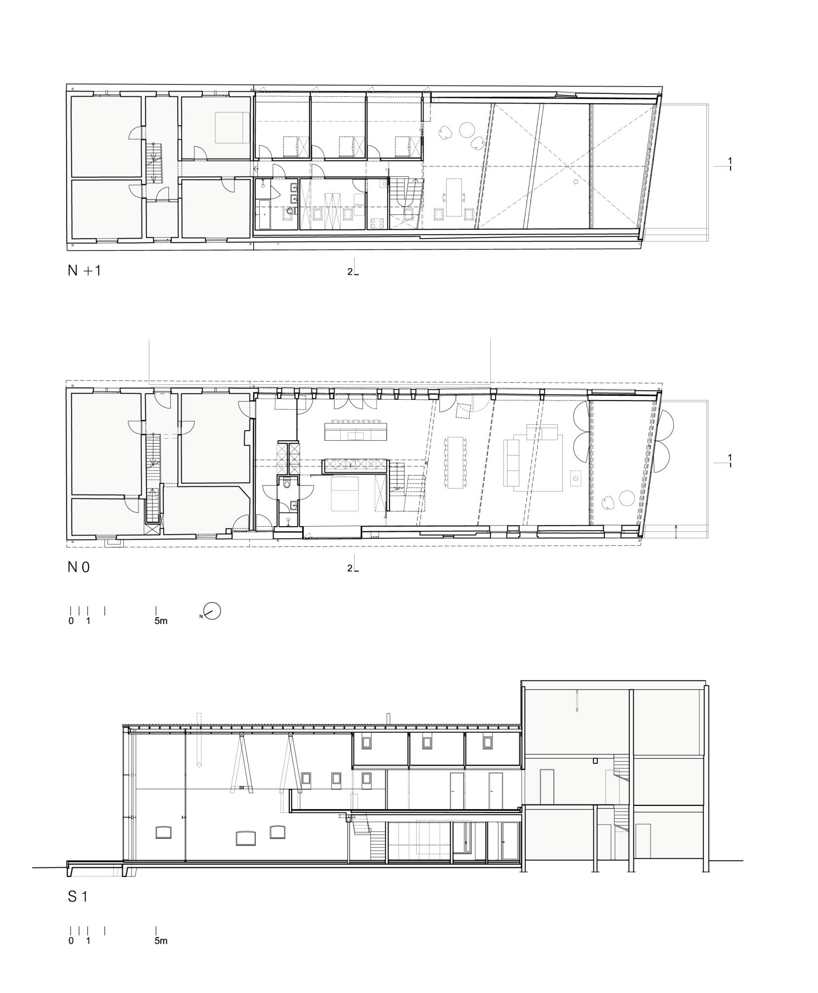
Voornamelijk de oude stallen hebben een duidelijke erfgoedwaarde. De oorspronkelijke indeling wordt omgekeerd; het woongedeelte verhuist naar de stallen en in het bestaande woonhuis kunnen in een tweede fase gastenkamers of een volwaardige kangoeroewoning worden georganiseerd.

De ritmische baksteenarchitectuur van de stallen met grote openingen, houten poorten en tal van kleinere willekeurig geplaatste ramen, lijkt ideaal om de nieuwe woonfunctie te herbergen.
Een dubbelhoge ruimte onder houten spanten en lagere bakstenen plafonds bepalen het karakter in de nieuwe woning. De kopgevel opent de voormalige stallen naar het landschap, de dubbele glazen serregevel fungeert als klimaatgevel met wintertuin. Op de zolderverdieping wordt een grote dakkapel toegevoegd die uitzicht biedt op het water.
De gevels in baksteen worden behouden en gerestaureerd en er wordt een nieuw geïsoleerd volume in het bestaande gebouwd.

Bouwheer
Koen en Wendy Laurijssen Absillis
Stabiliteit - EPB - VCO
Ecses
Aannemer
Dillen Bouwteam
Buitenschrijnwerk
Serrebouw De Clercq
Technieken
Techniek in Huis